POPP1
POPP
item6a
Cho5655GrdBlatt1
Cho56KiemenWandzuv2Meyer1
item3
Cho56Cho55AnsichtSMeyerv22a
Cho56Out02Ausschnitt3
Cho56POPP04
Cho56POPP023

Erstes Estradenhaus

mit Wellenwiese und Obstbäumen

 

 

Kritik von Prof. Angelika Schnell

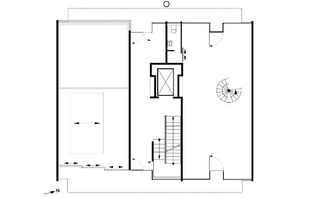
Das siebengeschossige Estradenhaus_1 in Berlin-Prenzlauer Berg (zehn Wohnungen nebst zwei Büros u. einem Laden) hat Wolfram Popp in eigener Initiative realisiert und damit die mittlerweile eingebürgerte Auffassung, im Wohnen gäbe es nichts mehr zu entwickeln, widerlegt. Da Wolfram Popp sich dazu bekennt, von innen nach außen zu entwerfen, stand die Idee des Wohnens bei diesem Projekt zentral. …

 

Zwei Wohnungen auf jedem Geschoß, die eine 108 qm, die andere 79 qm, bestehen jeweils aus einem Einraum und einer Servicezone, die die volle Tiefe einnehmen. Doch sind beide einerseits miteinander und andererseits zum Außen so raffiniert korreliert, daß die ganze Wohnung zu einer gelungenen Misch-ung aus Großzügigkeit, Komfort und Rückzugsbereichen wird. Wolfram Popp baut keine geschlossenen Räume, sondern Bereiche, deren Ränder offen und beweglich sind, so daß man eine Vielzahl von Optionen ihrer Nutzung hat. …

 

Zwei Elemente bestimmen dieses Verhältnis. Zum einen die namengebenden Estraden an Vorder- und Rückseite, eine jeweils 40 cm große und 1,80 m tiefe Erhöhung über die ganze Breite der Wohnung, die als besondere Plattform und Raumzone zugleich als privater und vermittelnder Bereich zwischen innen und außen genutzt werden kann, insbesondere wenn die raumhohen Fenstertüren, die um 180° drehbar sind, geöffnet sind, so daß Estrade und Balkon zusammen eine großzügige Loggia bilden. Der Eindruck des Entrücktseins von Alltagssorgen wird noch durch die Tatsache verstärkt, daß dort, wo die Estrade beginnt, auch die Decke um 40 cm in der Höhe verspringt. Die oberen Fensterrahmen sind nicht mehr sichtbar, der Blick wird nach oben und in die Weite gelenkt, außerdem fällt dadurch mehr Licht in die Wohnungen. Die Balkonbrüstung setzt dieses Motiv fort. Sie besteht aus einem feinmaschigen Stahlgewebe, das abhängig von Licht- und Windverhältnissen flimmernde Effekte hervorruft und wie durch einen Schleier die Durchsicht von innen erlaubt. Zugleich verhindert sie Einblick von außen. …

 

Das zweite wesentliche raumbildende Element ist die über die ganze Tiefe reichende „Kiemenwand“, die den Raum vom Servicebereich trennt. Sie besteht aus zwölf raumhohen, mit Erlenholz furnierten Holz-platten, die oben an zwei, unten an einer Schiene laufen und sich deshalb ohne zu verklemmen sowohl schieben als auch drehen lassen. Durch diese „Kiemen“ kann der Raum je nach Bedürfnissen orchestriert werden. Küche und Bad können offener Bestandteil der Wohnung sein oder auch nicht, der Eingang kann zur kleinen Halle werden oder ganz verschwinden, kleine Nischen für Schränke können entstehen oder auch nur glatte Flächen, und natürlich sind sämtliche Zwischenlösungen oder Kombinationen davon wählbar. Es versteht sich von selbst, daß diese "Wand" genau wie die meisten Einbauten und konstruktiven Details eine Erfindung von Wolfram Popp ist. Bis auf die Stahl-betonkonstruktion und die Fertigteildecken aus Sichtbeton gibt es nur eigens entwickelte Prototypen, die von der Sanitärinstallation bis zu den großen Eingangstüren reichen, welche nicht aufschlagen, sondern geschoben werden. Dennoch wirkt nichts übertrieben gestaltet. Vom kleinsten Detail bis zum Konzept ist alles auf Zweckmäßigkeit und Komfort ausgelegt. …

Kritik von Prof. Angelika Schnell , Auszug aus "junge deutsche Architekten", Verlag Birkhäuser

item4
item2
item5

• • • 1. Architekturpreis__ZUKUNFT WOHNEN
• • • 1. Auszeichnung
__Architekturpreis_Berlin
• • •
Bauherrenpreis_ _Architekturpreis_Berlin

BK300 + BK400 Index2015: 985€/m² BGF, frei finanziert

BGF/DIN277: 3490m²_ ___ __Kaltmiete 1998: 3,77€/m²

entspricht dem Mietspiegel___Kaltmiete 2015: 5,99€/m²

Choriner Straße 56 D-10435 Berlin

Estradenhaus 1 Berlin

ERDGESCHOSS

item1

KONZEPTE UND ENTWICKLUNG

HOME

PLANPOPP ARCHITEKTUR_STADT_LAND

contact

publications

about

Wohnungsbau

Studentisches Wohnen ALTE SPINNEREI HOF, Schützenstr. p

IBA'27 Quartier am Rotweg, Stuttgart, genoss.Wohnungsbau w

Ökonomisches WOHNHOCHHAUS auf 200 m² Grundfläche p

>_ SERIELLER WOHNUNGSBAU 262 Mietwohnungen, Berlin p

>_ ESTRADENHAUS 1 Choriner Str.56 Berlin, Mietwohnungen

ESTRADENHAUS 2 Choriner Str.55 Berlin, Eigentumswohnungen

>_ Gefördeter familiengerechter Wohnungsbau, Ingolstadt w

Gefördertes Modellvorhaben IQ innerstädtische Wohnquatiere w

>_ Filigranbau - Konzeption WOHNHOCHHAUS - BERLIN p

Wohnen u. Arbeiten 200 unterschiedl. WH, Quartier am Salzufer p

MAISONETTE-APPARTEMENTHAUS 118 Wohnungen, Berlin p

Prototyp KASKADE-Häuser WERKBUNDSIEDLUNG München w

Prototyp HELIX-Häuser WERKBUNDSIEDLUNG München w

Prototyp CHAMBORD-Häuser WERKBUNDSIEDLUNG München w

>_ HAUS AM PLATZ in Berlin, Stahlskelettbau & Vollholzelemente

INAC-2018: PreFab - Wohnbau Konzepte in Modular-Bauweise p

STUDENTISCHES WOHNEN, Konzepte ohne Flure p

Städter auf der Wiese, Konzepte LÄNDLICHE URBANITÄT p

Prototyp SCHMALE-HÄUSER, Schachteltreppen-Häuser Berlin p

Haus d. Gegenwart München, VARIABLE Reihenhäuser statt EFH

Bestandshaus 19 Jhr. Berlin, Sanierung und Modernisierung

Dach Raum, Raum im Raum, Berlin

Öffentliche Bauten

>_ BIZ Besucherzentrum Deutscher Bundestag ReichstagGebäude

>_ M20 MUSEUM des 20.Jahrhunderts Berlin Kulturforum w

FORSCHUNGSLABOR Wissenschaft d. Pathogene,Max-Planck w

FORSCHUNGSLABOR der Optobiologie Humboldt Uni. Berlin w

MdBG MUSEUM der Bayerischen Geschichte Regensburg w

>_ ZENTRALE BIBLIOTHEK der Humboldt Universität Berlin w

>_ Alternative Erweiterung der KUNSTHALLE Bremen w

>_ AUSSTELLUNGSHALLE Documenta Kassel, ein neuer Typ w

VÖLKERKUNDMUSEUM Frankfurt w

KUNSTMUSEUM und Kunsthalle Bonn w

>_ Unterirdisch, Gestaltung KULTURPASSAGE Karlsplatz Wien w

Alternative Gestaltung KUNSTBUNKER u. Bürohaus, Berlin Mitte p

AUSSTELLUNGSHALLE & PARK Hockney und Caro, London w

Multifunktionale SPORTHALLE Südtondern, Niebüll w

Prototyp Stahlkonstruktion SPORTHALLE, Stuttgart w

Stadtquartiere

AREAL der ehemaligen SPINNEREI HOF, Schützenstrasse p

IBA'27 Quartier Rotweg, Stuttgart, von der WH zum Quartier w

>_ Prototyp UWE_01 innerstädt. SERIELLER WOHNUNGSBAU p

KOMPAKTE Wohnquartiere +vernetzte Erschliessungsstruktur p

Stadtquartier WERKBUNDSIEDLUNG WIESENFELD München w

>_ STADTQUARTIER am SALZUFER, Gutenbergstr. Berlin p

Hackesches Quartier Süd Berlin, altern. städtbauliches Konzept p

ANSIEDELN Moabiter Werder Panketal, Stadt in der Stadt

INDIREKTE STADT, Konzeption für die Bundeskulturstiftung w

Gewerbliche Bauten

Neubau BÜROHAUS am Eck, Leipziger Straße Berlin p

Neubau ZENTRALE Scholz & Friends Am Kupfergraben Berlin p

>_ MEDIUMMULTI für Pixelpark AG / Bertelsman, Berlin-Moabit

Prototypen LOOPING-OFFICE für den Axel Springer Verlag p

CONSULTING CENTER Pixelpark AG / Bertelsman in Berlin p

Cho5655GrdBlatt1 Cho56KiemenWandzuv2Meyer1 item3 Cho56Cho55AnsichtSMeyerv22a Cho56Out02Ausschnitt3 Cho56POPP04 Cho56POPP023 item4 item2 item5